
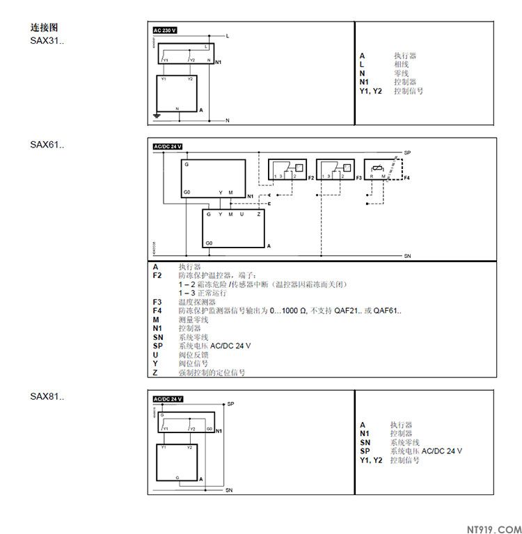
· SAX31.. 工作电压 AC 230 V, 三位控制信号
· SAX61.. 工作电压 AC/DC 24 V, 控制信号DC 0…10 V,
4…20 mA
· SAX81.. 工作电压 AC/DC 24 V, 三位控制信号
· SAX61.. 阀位反馈, 优先控制,可选流量特性
· 可直接安装在阀门上;无需调整
· 带手动调节器,位置指示器和LED状态显示
· 可选配辅助开关、电位计、功能模块、阀杆加热元件等
应用
用于暖通系统控制和安全切断的西门子V..F21.., V..F31.., V..F40.., V..F41..,
V..G41.. 和 VVF52..系列型号的二通阀和三通阀,驱动行程为20mm。辅助开关、电位计、功能模块、阀杆加热元












